4208 White Acres Ct, Virginia Beach, VA 23455
Toggle Navigation
Images
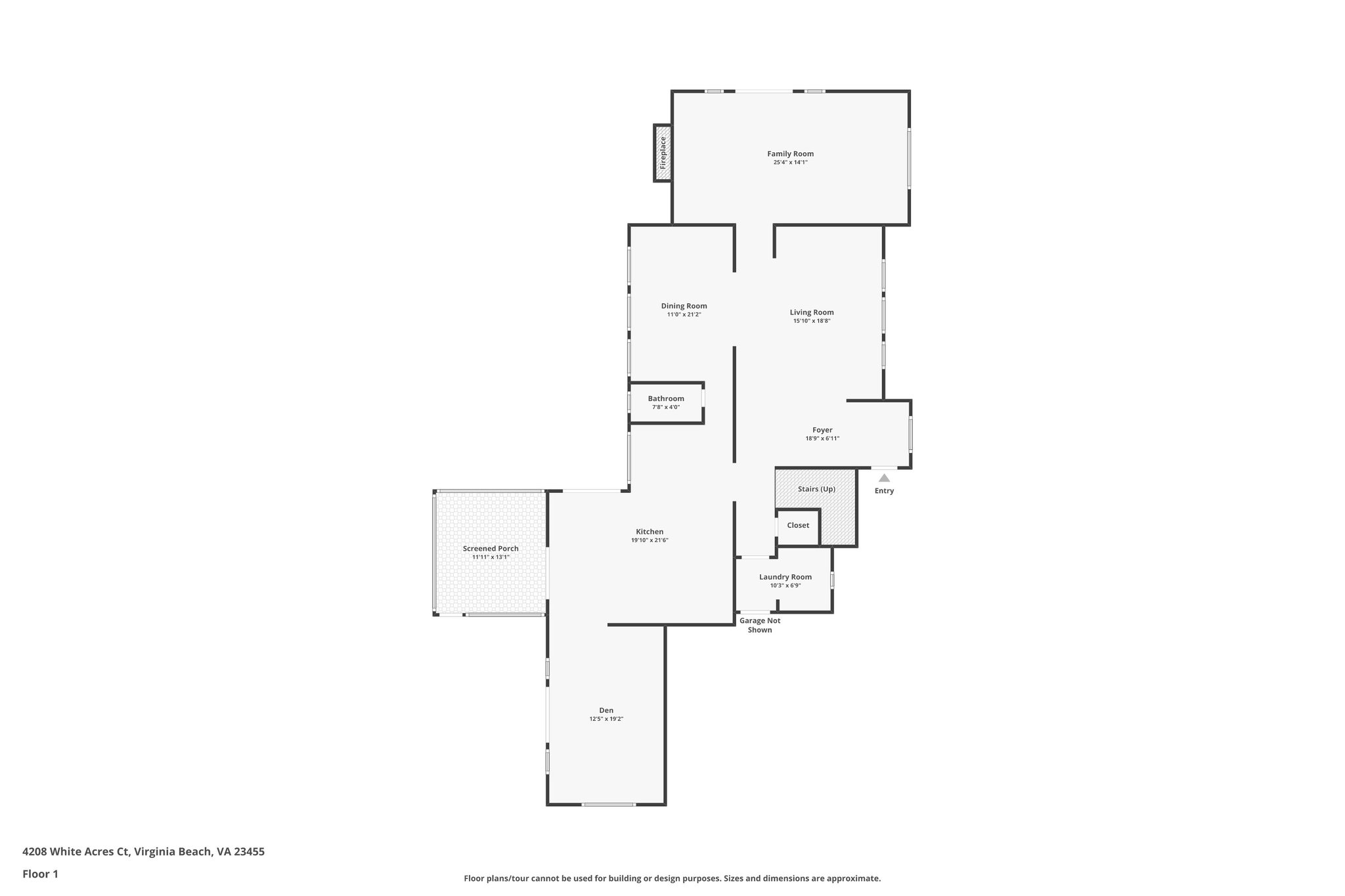
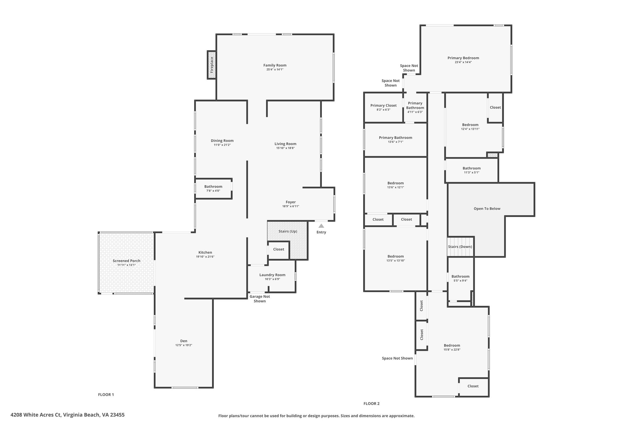
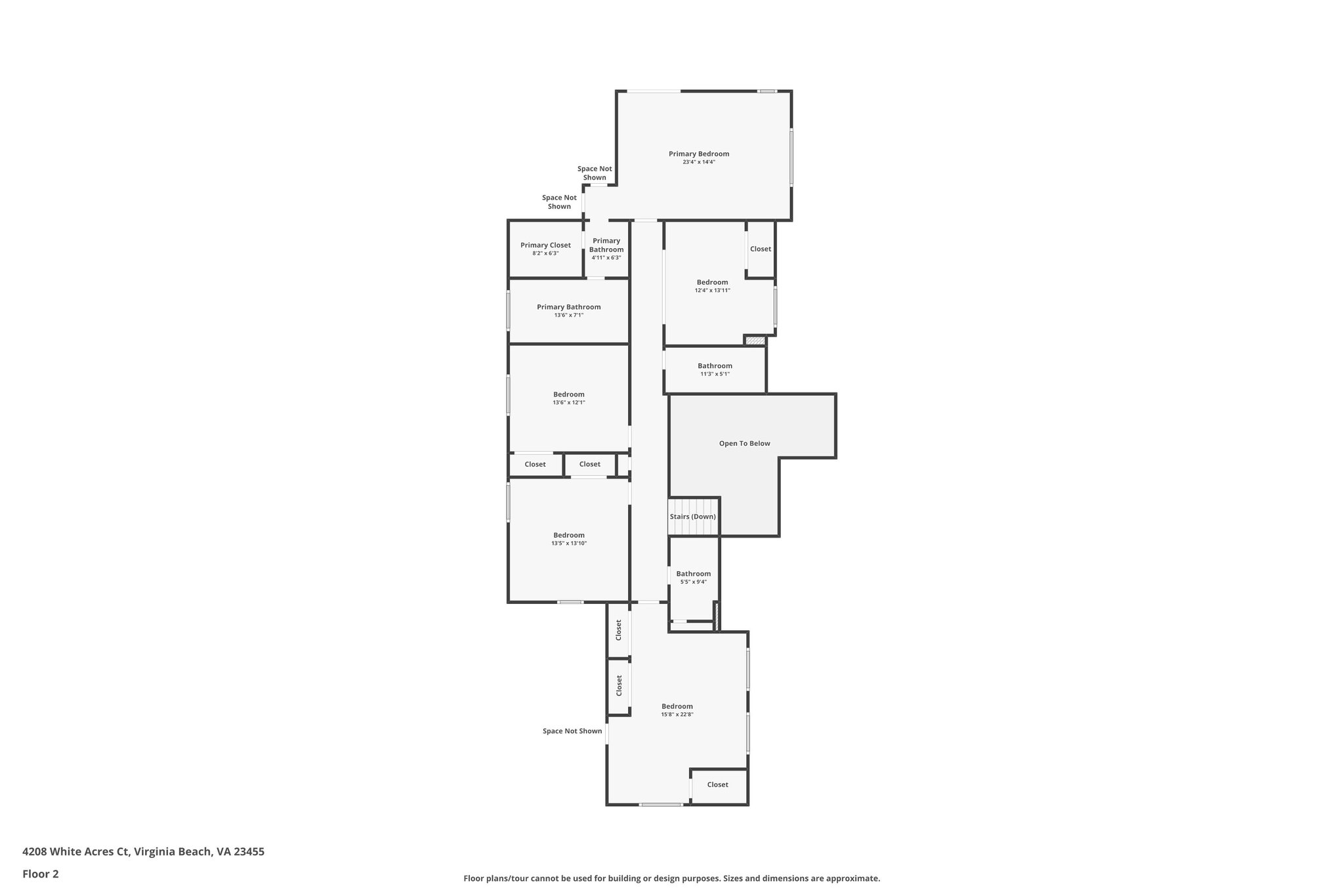
Floor Plans
3D Tour
Map
4208 White Acres Ct
Virginia Beach, VA 23455
Scroll to Content
Images
Slideshow
Photo Grid
Hide
Previous
Next
Show more
Floor Plans
Slideshow
Photo Grid
Hide
Previous
Next
3D Tour